Leave a Message

Thank you for your message. We will be in touch with you shortly.

Explore Our Properties

Property Description

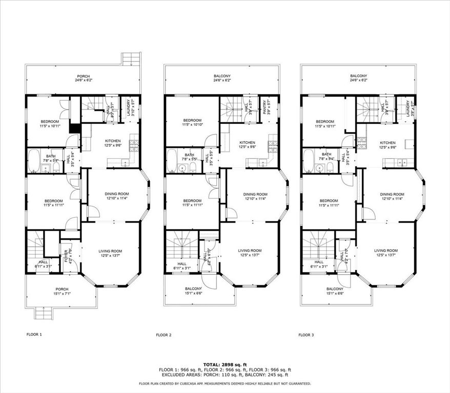
Welcome to this well-maintained, multi-family home nestled in the heart of Roslindale, one of Boston's most sought-after neighborhoods. Offering 8 bedrooms and 4 bathrooms across three spacious units, this property presents an ideal opportunity for both investors and owner-occupants looking for rental income potential. Three Separate Units is generously sized with a flexible floor plan, providing ample space for comfortable living. The first and second floors will be coming in tenants already in place. Each unit feature 2 bedrooms and 1 full bathroom, a fully equipped kitchen with appliances, plenty of counter space, and ample cabinetry, making it perfect for home cook and meal preparation. Unit 3 will come vacant & includes a large, fenced backyard with a little TLC it will be perfect for outdoor entertaining, gardening, or relaxation. Don't miss out on this fantastic opportunity to own a turn-key multi-family home in one of Boston's most charming neighborhoods.

Overview

Property Status
Sold
Lot Size
3,468 Sq.Ft.
MLS ID
73312913
Property Type
Multi-Family
Year Built
1920

Features & Amenities

Total Area
3,249 Sq.Ft.
Stories
3
Water Source
Public
Utilites
for Gas Range, for Electric Dryer, Washer Hookup
Roof
Shingle
Parking
Paved Drive, Off Street
Heat Type
Baseboard
Air Conditioning
None
Laundry Room
Washer Dryer Hookup, Electric Dryer Hookup, Washer Hookup
Appliances
Range, Dishwasher, Refrigerator, Microwave
Other Interior Features
Ceiling Fan(s), Bathroom With Tub Shower, Other, Living Room, Dining Room, Kitchen
Sewer
Public Sewer
Substructure
Concrete Perimeter
Other Exterior Features
Balcony/Deck, Balcony
Sales Price
$1,189,000
Real Estate Tax
$12,805/yr
Zoning
R3

Downloads

23 Granfield Ave

Schedule a Tour

We would love to help you see this beautiful home! As a full-service brokerage, we can help you tour. Please submit an offer, and answer questions about the buying process.

Enter a valid email

Thank you

for your interest in 23 Granfield Ave, Boston, MA 02131

back to page
23 Granfield Ave
Navigate

 

Follow Us On Instagram