Leave a Message

Thank you for your message. We will be in touch with you shortly.

Explore Our Properties

Property Description

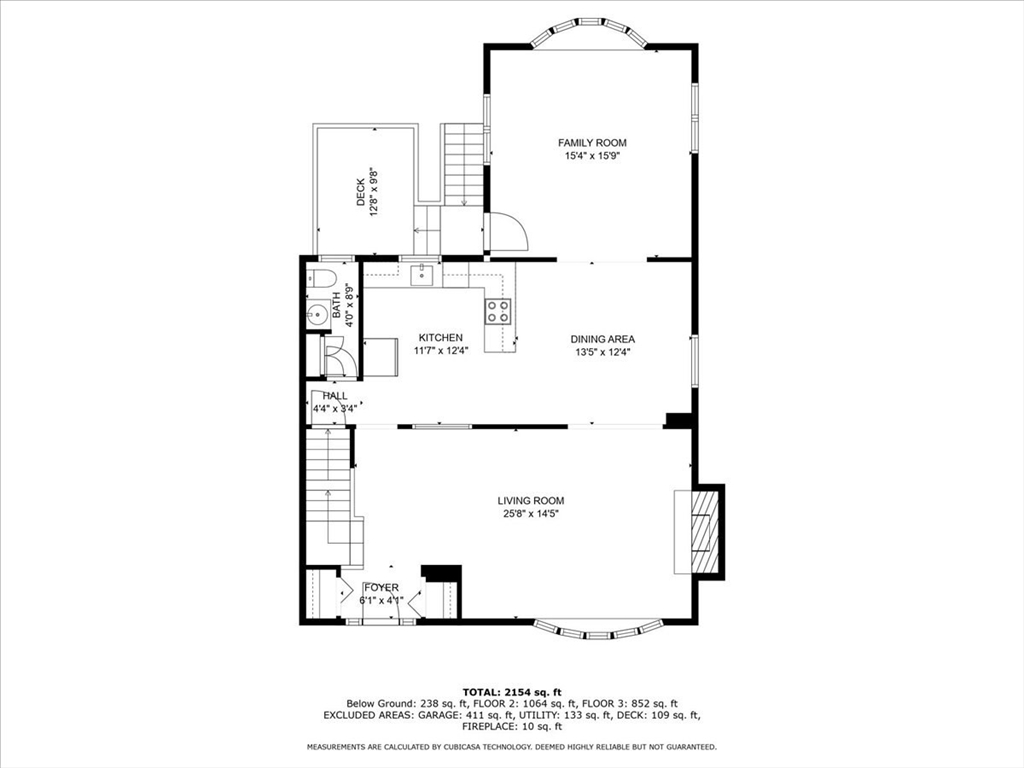
"Welcome to your dream townhouse in Randolph, MA! This stunning 3-bedroom, 2.5-bathroom home offers the epitome of comfort and convenience. Enjoy the luxury of an en suite bathroom in the main bedroom, providing a personal sanctuary. Entertain with ease in the spacious living room, sun-drenched den with skylights, perfect for gatherings of any size. Step outside to a serene backyard oasis, complete with beautiful landscaping, ideal for relaxing or entertaining outdoors. With some cosmetic work, this townhouse can evolve into your personalized sanctuary. Seize the opportunity to craft the home of your dreams! Additional features include a 2-car garage for added convenience and the partially finished walk-out basement not included in the living square footage, offering endless possibilities for additional living space or storage

Overview

Property Status
Sold
MLS ID
73237719
Property Type
Condo
Year Built
1979

Features & Amenities

Total Area
1,880 Sq.Ft.
Stories
2
Garage Spaces
1.0
Water Source
Public
Utilites
for Electric Range, for Electric Dryer, Washer Hookup
Roof
Shingle, Rubber
Parking
Attached, Off Street, Paved
Heat Type
Forced Air, Natural Gas
Air Conditioning
Central Air
Laundry Room
In Basement, In Building, Electric Dryer Hookup, Washer Hookup
Fireplace
Living Room
Appliances
Range, Dishwasher, Refrigerator, Washer, Dryer
Sewer
Public Sewer
Other Exterior Features
Deck - Wood, Garden, Rain Gutters, Professional Landscaping
Sales Price
$530,000
Real Estate Tax
$4,975/yr
Zoning
RH

Downloads

17 Jacobs Rd # 17

Schedule a Tour

We would love to help you see this beautiful home! As a full-service brokerage, we can help you tour. Please submit an offer, and answer questions about the buying process.

Enter a valid email

Thank you

for your interest in 17 Jacobs Rd # 17, Randolph, MA 02368

back to page
17 Jacobs Rd # 17
Navigate

 

Follow Us On Instagram